【新築】伊丹市桑津2丁目 新築倉庫・事務所・駐車複数可!
伊丹市桑津2丁目7-16
2026年4月完成の新築物件!
車種により複数台駐車可能!
詳細はお問い合わせください!
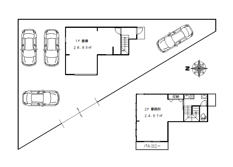
物件概要
- 種別
- 貸倉庫・事務所
- 月額賃料
- 187,000円(税込)
- 敷金
- 無し
- 礼金
- 2ヶ月
- 1階面積
- 33.36㎡
- 2階面積
- 35.03㎡
- 合計面積
- 68.39㎡
- 建物構造
- 木造
- 築年月
- 2026年4月(新築)
- 階数
- 2階建
- 駐車場
- 無し
- 現況
- 建築中
- 引渡
- 相談
- 契約期間
- 2年
- 設備
- 電気・上下水道
- 備考
- 2026年4月末完成予定
- 火災保険
- 加入要
- 賃貸保証会社
- 加入要
- 注意事項
- ※資料と現況が異なる場合は現況を優先します。
- 取引態様
- 仲介
- 物件担当
- 前田 裕太郎
アクセス
- 所在地
- 伊丹市桑津2丁目7-16
- 交通
- JR福知山線 伊丹駅 徒歩約17分