貸工場・貸倉庫・貸土地
RENTAL  FACTORY・WAREHOUSE・LAND

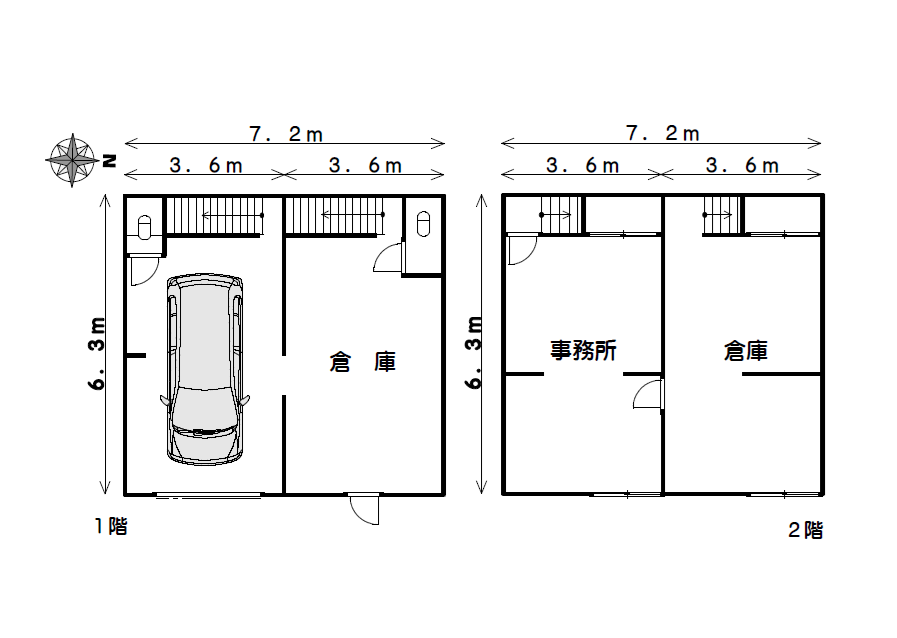
金楽寺町2丁目車庫付・倉庫・事務所!

尼崎市金楽寺町2丁目23-3
駐車場付き貸倉庫物件、2階には事務所スペース有り!
シャッター高は約2.2m!
近隣にはスーパー、コンビニ、ドラッグストアがあり利便性も抜群です!
詳細はお問い合わせください!

物件概要

種別
貸倉庫・事務所
月額賃料
99,000円(税込)
敷金
1ヶ月
礼金
2ヶ月
1階面積
45.36㎡
2階面積
45.36㎡
合計面積
90.72㎡(約27.44坪)
建物構造
木造
築年月
不詳
階数
2階建
接道状況
東側 公道に接道
現況
空き
引渡
相談
契約期間
2年
設備
電気・上下水道
火災保険
加入要
賃貸保証会社
加入要
注意事項
※資料と現況が異なる場合は現況を優先します。
取引態様
仲介
物件担当
前田 裕太郎

アクセス

所在地
尼崎市金楽寺町2丁目23-3
交通
JR東海道本線 尼崎駅 徒歩約14分