尼崎センタープール前駅徒歩圏内、琴浦通り沿いの貸店舗!
尼崎市蓬川町16-5
尼崎センタープール前駅から近く、琴浦通りに面したヘアーサロン跡地の住居付き貸店舗物件です!
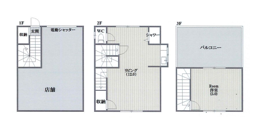
1Fは店舗スペース、2Fと3Fは1LDKの住居スペースとしてご利用いただけます!
入口は電動シャッター、当初は飲食店入渠の為ガス配管と上下水道配管があります!
近隣にはスーパー、コンビニ、ドラッグストアがあり利便性も抜群です!
詳細はお問い合わせください!
物件概要
- 種別
- 貸店舗・住居
- 月額賃料
- 120,000円(税別)
- 共益費
- 込み
- 水道代
- 検針
- 敷金
- 無し
- 礼金
- 3ヶ月
- 1階面積
- 25.54㎡
- 2階面積
- 27.53㎡
- 3階面積
- 14.16㎡
- 合計面積
- 67.23㎡
- 間取り
- 店舗+1LDK
- 建物構造
- 木造
- 築年月
- 不詳
- 階数
- 3階建
- 現況
- 空き
- 引渡
- 即時
- 契約期間
- 2年
- 設備
- 電気・都市ガス・上下水道・トイレ
電動シャッター・シャワールーム
キッチン・エアコン - 火災保険
- 加入要
- 賃貸保証会社
- 加入要
- 注意事項
- ※資料と現況が異なる場合は現況を優先します。
※1F駐車場利用不可
※1Fはガス配管と水道配管埋設
※解約予告2ヶ月前 - 取引態様
- 仲介
- 物件担当
- 前田 裕太郎
アクセス
- 所在地
- 尼崎市蓬川町16-5
- 交通
-
阪神本線 尼崎センタープール前駅 徒歩約8分
阪神本線 出屋敷駅 徒歩約9分